自然游乐园09——The Green
日期:2016-06-29 发布人:



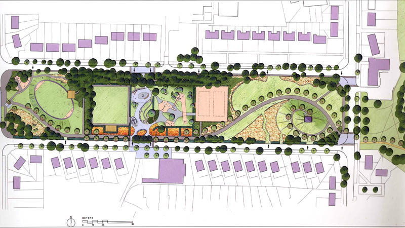
The Green公园位于英国纽约郡,是由卡斯尔福德公园改建而成。项目的设计灵感来源于附近的学校,孩子们也参与到游乐区各个部分的设计中,从设定游乐区的主题,到设计书屋、彩色玩具和花形雕塑。这些颜色绚丽的花形雕塑伫立在园中小路的两侧,为年龄小的孩子营造了一个梦幻般的环境。这种参与并不仅仅是象征性的动动手,而是让他们充分了解整个项目的技术,让他们成为设计者,成为这个公共空间的主人。



沿着公园的一侧设有滑索装置,滑索的下方是一处水景观,水景观的橡胶地面上画有鳄鱼。大块的石头被看似随意地摆放在花园中,供孩子们和家长们坐在上面休息。



原来荒废闲置的公园,现在已经成为孩子们游戏和享受时光的好去处。当地居民每天都会来这里休闲娱乐,增强了整个社区的凝聚力。




